DETAILS
物件詳細
白樺通・帯広
買いたい
売りたい
店舗情報
ブログ
お問合せ
マイリスト
|買いたい|
エリアから探す
地図から探す
種別から探す
|新着・売買物件情報|
|売りたい|
|店舗情報|
|ブログ|
|お問合せ|
|マイリスト|
|企業情報|
|サイトマップ|
|リンク|
|個人情報保護方針|
戸建て ☆美邸☆音更町大通4丁目 中古住宅
6,950
万円
物件No.
17613642850238
所在地
河東郡音更町大通4丁目4-2
築年月
1999年11月
種別/階数
戸建て/地上2階建
交通
十勝バス 音更大通4丁目 徒歩2分
管理・共益費
-
修繕積立金
-
コメント
●音更町大通4丁目・6LDK中古戸建☆ ●約361.85坪 の広々敷地☆ ●外壁・屋根塗装&屋上防水施工済み☆ ●玄関アプローチ・車庫アプローチにロードヒーティング完備で冬も安心☆ ●1階部分と車庫がRC造で丈夫な造り☆ ●部屋数の多いお家がご希望の方にもオススメ☆ ●南窓で日当たり良好☆ ●収納豊富で痒い所に手が届く嬉しい間取り設計☆ ●ベンチ付きの自然に囲まれたお庭でゆったりとしたリラックスタイムを過ごせます☆ ●お庭の地中には土壌改良や浄化作用もあると言われている炭が撒かれています☆ ●屋外2台+車庫3台の合計5台駐車可能!来客時にも便利です☆ ●スーパー、コンビニ、飲食店などの商業施設が徒歩10分エリアに充実☆ ●小中学校・遊具付きの公園なども近くて子育て環境良好☆ ※図面と現況に相違がある場合は現況を優先とします。
+ マイリストに登録
この物件に問い合わせをする
間取
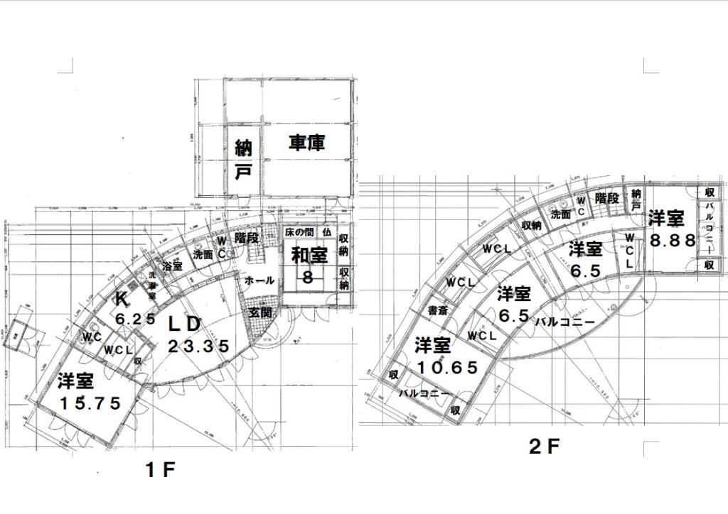
6LDK(LDK29.6帖/洋室17.7帖/和室8.0帖/洋室10.6帖/洋室6.5帖/洋室6.5帖/洋室8.8帖)
所在階
地上0階
総戸数
0戸
土地権利
所有権
用途/地目
第一種住居地域/宅地
バルコニー面積
0.00㎡
引渡
相談
取扱
ハウスドゥ帯広|ハウスドゥ 帯広
仲介手数料
2,359,500円
学校区
音更小学校/音更中学校
設備
整形地/閑静な住宅街/車庫あり/日当り良好/照明器具付/フローリング/ウォークインクローゼット/シューズボックス/全室収納あり/トイレ2カ所以上/温水洗浄トイレ/浴室1坪以上/IHクッキングヒーター/コンロ3口以上/システムキッチン/エアコン付/床暖房/24時間換気システム/モニタ付インターホン/上水道/下水道
専有面積
0.00㎡
構造
鉄筋コンクリート造
面積
建物/267.79㎡ 土地/1196.22㎡
建ぺい/容積
建ぺい率60% 容積200%
接道状況
東側公道44.54m
現況
入居中
駐車場
有り
取引態様
一般
管理会社
-
リフォーム
-
備考
+ マイリストに登録
この物件に問い合わせをする
白樺通・帯広
宅地建物取引業者免許番号:北海道知事十勝(2)第726号
TEL.0155-67-8833
|ハウスドゥ 白樺通|
〒080-0028 帯広市西18条南3丁目26番16号
TEL.0155-67-6005
|ハウスドゥ 帯広|
〒080-0018 帯広市西8条南14丁目2番地1
|買いたい|
エリアから探す
地図から探す
種別から探す
|新着・売買物件情報|
|売りたい|
|店舗情報|
|ブログ|
|お問合せ|
|マイリスト|
|企業情報|
|サイトマップ|
|リンク|
|個人情報保護方針|
当サイト「帯広不動産ドットコム」では、帯広市内全域…帯広駅周辺の中心街をはじめとする、東部・北部・南部・西部の不動産売買物件を幅広くご紹介いたします。
中古の一軒家・マンション・土地から、投資用物件まで、ご相談は「帯広不動産ドットコム」へ、いつでもお問い合わせ下さい。
copyright(c) obihirofudosan.com.all right reserved.